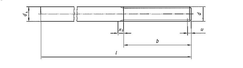
DIN 525

Studs for welding
Replace DIN 525-1:1941-01,1953-06,1963-03,DIN 525::1970-11,1986-09
Relevant suppliers

Tell me what you see in "Golden Spider" and will give you a discount

No Company
经营许可证编号:粤B2-20210752号丨备案号:粤ICP备09029740号
粤公网安备 44011102001662号
技术支持:广东金蜘蛛电脑网络有限公司
Golden Spider Network Co., Ltd.